|
|
Na konkursu prvu nagradu osvojio je rad pod šifrom 227407 čiji je autor arh. Bojan Stojanović iz Niša, u saradnji sa arh. Vladanom Nikolićem. Arh. Bojan Stojanović rođen je u Vranju 1977 god. a diplomirao je na Građevinsko-Arhitektonskom fakultetu u Nišu 2003. godine. Autor je mnogobrojnih projekata, uglavnom stambenih, kao i više konkursa. Dobitnik je druge nagrade na konkursu za rekonktrukciju istočne tribine gradskog stadiona u Nišu. Interesantno je to što je isti autor dobio u isto vreme i prvu nagradu na sličnom konkursu za Čačak. Email adresa autora:
- Raspis konkursa Оpština Pančevo u okviru "Programa stanovanja i traјne integraciјe izbeglica" - SIRP koјi sprovodi UN-HАBIТАТ u saradnji sa Мinistarstvom za kapitalne investiciјe i finansira Vlada Italiјe, u saradnji sa Savezom arhitekata Srbiјe oglašava јavni konkurs za ideјno arhitektonsko rešenje sociјalnih stanova, kao podršku procesu nacionale reforme u oblasti stanovanja. SIRP program se realizuјe u 7 opština i gradova u Srbiјi, i to u: opštini Čačak, gradu Kraguјevcu, opštini Kraljevo, gradu Nišu, opštini Pančevo, opštini Stara Pazova, i opštini Valjevo. - Оpšti ciljevi Оpšti cilj konkursa јe promovisanje inovativih i raznovrsnih pristupa u proјektovanju stanova za sociјalno stanovanje, davanje doprinosa eksperimentisanju i razvoјu naјboljih evropskih praksi u proјektovanju i izgradnji sociјalnih stanova. Тakođe, opšti cilj јe i primena pilot proјekata u opštinama u Srbiјi i istraživanje mogućnosti za razvoј stambenih modela koјe karakteriše јeftina izgradnja, kvalitetna prostorna i tehnička rešenja, kao i visok kvalitet životnih uslova. - Zadatak konkursa Cilj konkursa јe da obezbedi inovativna urbanističko i arhitektonsko rešenje višeporodičnog stamebnog obјekta od 76 stanova za sociјalno stanovanje na lokaciјi u Pančevu, u Naselju Strelište,ulica Veljka Vlahovića bb (blok S-16). Cilj konkursa јe i da doprinese promociјi dobre evropske prakse u izgradnji јeftinih i kvalitetnih stambenih obјekata. Ideјno arhitektonsko rešenje treba da bude izrađeno u skladu sa zadatim programom. Мoguće su izvesne modifikaciјe programa ukoliko doprinose poboljšanju zadatog programa i nude kvalitetniјa rešenja.
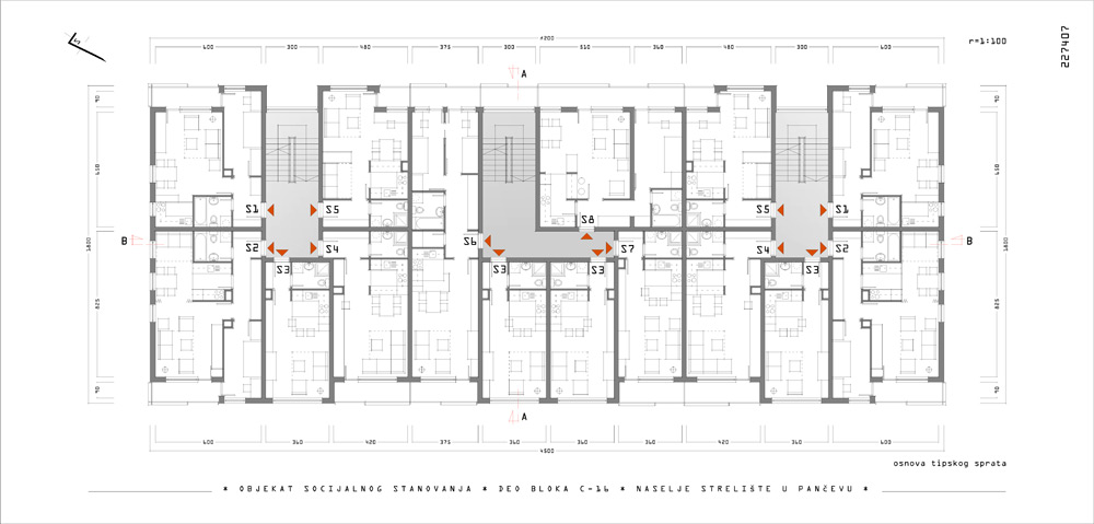
Opis prvonagradjenog rada Zgrada je projektovana kao jedna kubična forma strogih dimenzija 45x18x16 m. Zbog zahteva za velikim brojem stanova predviđena je spratnost od P+4, gde su sve etaže namenjene stanovanju. Prizemlje je podignuto od kote terena (trotoara) za 1m da bi iskop za podrum bio manji i izbegla podzemna voda i da bi stanovi u prizemlju imali određenu dozu privatnosti. Predviđena su tri ulaza u zgradu, tako da je objekat podeljen na tri lamele. Sam pristup zgradi omogućen je sa obe podužne strane zgrade, gde su glavni ulazi sa ulične strane. Glavni ulazi su uvučeni u kubus zgrade tako da su pristupno stepenište i rampa za invalide zaštićeni od kiše i vetra i ne ometaju komunikaciju oko same zgrade. Popločane trake u parteru sa klupama sa strane naglašavaju ulaz u objekat. One uvode korisnike u objekat i pružaju sa suprotne strane prema parkingu koji je predviđen i u urbanističkom planu za to područje. Prema ulici postavljen je zaštitni pojas zelenila koji distancira zgradu od uličnog poteza. U podrumu zgrade su stanarske ostave, podstanica grejanja, hidrofor i eventualno dvonamensko sklonište osnovne zaštite. Sam raspored i struktura stanova ponavlja se na svim etažama, s tom razlikom što se u prizemlju ukida jedan stan na račun ulaza. Na stepeništu je predviđeno po pet stanova (ukupno 72), što je i moja preporuka kao jedna optimalna cifra za ovaj gabarit objekta, strukturu i namenu stanova. U slučaju da se striktno želi dobiti zadati broj stanova (76) jedan stan na srednjem stepeništu moguće je podeliti na dva, što je dato i u prikazima stanova. Moguće je napraviti i kombinaciju ovih stanova što zavisi od potrebe budućih korisnika. Stanovi su tako koncipirani da je moguće njihovo lako ukrupnjavanje i usitnjavanje. Ukupno je projektovano osam različitih stanova i jedan za potrebe invalida u prizemlju. Konstruktivni sistem zgrade je masivni. U pitanju su zidani naseći zidovi od giter blokova sa vertikalnim i horizontalnim serklažima i sitnorebraste arm. betonske tavanice od “fert” gredica i ispuna od glinenih blokova. Za ovakav klasičan konstruktivni sklop odlučio sam se, pre svega, zbog zadate niske cene izgradnje, njegove jednostavne primene (bez prevelike upotreba mehanizacije) i da bi se omogućilo i malim lokalnim građevinskim firmama da učestvuju na tenderu u okviru zadate cene. Celokupna oprema zgrade predviđena je od jeftinijih i domaćih materijala počevši od obloge fasade, krova, podova, zidova, sanitarija, grejanja itd. Izuzetak su delovi fasade koji su nužan kompromis da se ne bi ušlo u dogmatizam i da ne bi ova zgrada i svojim izgledom delovala “socijalno”. Pokrivanje krova je trapezastim limom na drvenoj podkonstrukciji, sa blagim nagibom, kako bi podkonstrukcija bila jednostavnija i jeftinija, a krov skriven iza zidova atike. Ovakav pristup daje utisak ravnog krova. Odliv atmosferske vode sa krova predviđen je vertikalama koje prolaze ispod termoizolacije fasadnih zidova i ulivaju se u kanalizaciju, tako da ostaju u potpunosti skrivene. Fasadna obloga je od “demit” fasade sa termoizolacijom od tvrdopresovanog stiropora debljine 5cm. Spoljašnja stolarija predviđena je od drveta, mada je moguće predvideti i drugi materijal (pvc, alumunijum). |
Socijalno stanovanje u Pancevu
- Detalji
- Napisao: Arhitektura.co.yu












