Trofazni PV paneli - šema rada


Aksonometrija objekta


Solarni kolektor - tamni zid apsorbuje solarnu energiju kojom je omogućeno zagrevanje ventilacionog vazduha iz skladišta


Sistem foto-ćelija (PV sistem) je integrisan u strukturu krova


Kompaktno fiksirano fluorescentno osvetljenje


Tamni zid - solarni kolektor


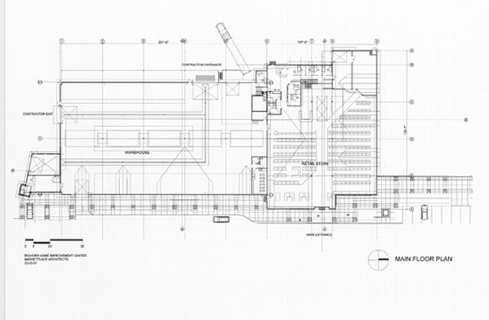
Prodajni prostor


Skladište


Pogled na BigHorn centar


Planovi

Projektanti - Frisco, NREL, Encompass, Burdicktechnologies, Summit
Istražovački tim - Northstar Parteners, Triangle electric, Marketplace architects - Jerry Dokken, Michael Shult
Konstruktivni elementi - Kalwall, Solarwall
Nagrade - AIA/cote Top 10 green projects - 2001, CU for Sustainable Development- 2002 Colorado Ren. Energy Society-2000
Realizacija - April 2004

GENERALNI PREGLED

Lokacija: Silvertorn, Colorado, SAD
Tip objekta: Tržni centar, industrijski objekat, maloprodaja
Nova konstrukcija
Površina: 4.127 kvadratnih metara (26%)
Ukupna površina kompleksa: 156.991 m2
Visina objekta: prizemni

Centar je konstruisan u tri posebne faze. Opis koji sledi odnosi se samo na treću, završnu fazu. Objekat je izgrađen na zemljištu sa već postojećim strukturama, pa predstavlja primer odgovornog razvoja jedne sredine. Treća faza, izgradnja prodavnice specijalizovane za metal i magacina drvene građe, je naročito interesantna poklonicima tzv. zelene arhitekture.

Aspekti okruženja

Ovu komercijalnu ustanovu karakterišu brojne inovacije u pogledu uštede energije. Potrebne količine energije smanjene su zahvaljujući ekstenzivnoj dnevnoj-sunčevoj svetlosti i sistemima za hlađenje putem prirodnog ventilisanja. BigHorn je uspostavio i dogovor o povraćaju električne energije nadležnim kompanijama, jer solarni sistem kombinovan sa strujom a integrisan u strukturu krova, predstavlja najveću komercijalnu PV-photovoltaic mrežu države. Pored toga, postojeće močvarne zone u okviru kompleksa su injektirane i iskorišćene za razvoj BH plana o upotrebi kišnice i snage vetra.

Dizajn i projektovanje nove konstrukcije objekta u potpunosti podržava predanost BH centra zelenoj arhitekturi, čija je osnovna delatnost prodaja eko građevinskog materijala, razvoj primerene tehnologije i besplatno savetovanje iz te oblasti.

Okruženje / tip objekta: Predgrađe / komercijalni-industrijski
Prethodno izgrađeno zemljište, močvarno tlo
Vlasnici: Don i Betsy Sather; Charli Cole korporacija
Broj zaposlenih: 95 ljudi, 77h nedeljno
Ključne reči: Integrisani tim, zaleni okvir rada, močvarno tlo, zastakljivanje, pasivno-solarna kontrola osvetljenja i dnevno osvetljenje, lokalno obnovljiva električna energija, recikliranje, dnevna svetlost, prirodna ventilacija

Idejni projekat

Originalni cilj vlasnika bio je kreiranje "zelenog"-eko objekta, energetski produktivnog. U početnim fazama preduzeti su koraci: kupovina zemlje, finansiranje projekta, obezbeđivanje stanara-zakupaca, rešavanje pitanja vlasništva. Izbor zemljišta je bio ograničen jer je mali broj parcela zadovoljavao zahteve za izgradnju prodajno-skladišnog prostora predviđene veličine. BH centar je građen u tri faze.U fazi I prihvaćena je upotreba prirodnog osvetljenja preko potkrovnih prozora u deli prodajnog prostora. Faza II obuhvatila je dodavanje PV panela. Kroz ove faze, projektantski tim se bliže upoznao sa konceptima i prednostima prirodnog osvetljenja i solarne energije, pa se odlučuje na rešavanje pitanja održanja-konzervacije energije u fazi III.

Projekat

Učesnici projektantskog tima bili su poklonici green principa. U saradnji sa NREL pristupilo se sagledavanju budućeg objekta u celini , a da svi elementi (prozori, zidovi, podovi, električni sistemi, mehanički sistemi) funkcionišu kao efikasna, delotvorna celina. Uz korišćenje kompjutera simulirana je upotreba energije, a da bi se pronašlo rešenje koje bi na najbolji način odgovaralo nameri projektanata. Kompjuterske simulacije su pomogle pri dizajnu prozora i zastora kako bi oni sakupili odgovarajuću količinu svetlosti i toplote tokom godine. Prirodna ventilacija je predviđena za prodajni prostor i magacin, što je eliminisalo potrebu za centralnim klima sistemom. Redukovan je i broj predviđenih plafonskih svetiljki. Originalni dizajn od strane mehaničkih inženjera predviđao je upotrebu klasičnog HVAC sistema i podno grejanje u nivou mezanina, koje je projektantski tim odbacio čime se u pogledu finansija uštedilo. Umesto dva velika kotla (u slučaju kvara otežana je distribucija tople vode) prihvaćena je opcija za postavljane četiri manja (koristili bi se u zavisnosti od potrebe). Broj svetiljki je redukovan za 1/3, a da iliminacija nije izgubila na kvalitetu, a umesto uobičajenih upotrebljene su kompaktne fluoroscentne svetiljke. Eventualno povećanje troškova izgradnje bilo je kompenzovano dugoročnim troškovima utrošene energije.

Konstrukcijski tim

Svi članovi tima imali su zajednički tim i učestvovali su u programu recikliranja i ponovne upotrebe građevinskog otpada.Nedeljni sastanci pomogli su rešavanje tekućih problema.

Finansije i troškovi

Izgradnja BH centra je finansirana tradicionalno, bez upotrebe nekonvenkcionalnih metoda.Olakšice na građevinske takse i uvećana amortizacija su od male važnosti.

Podaci o troškovima

Ukupno koštanje projekta: $5.200.000
Nekretnine: $600.000
Lakši radovi: $310/m
Teži radovi: $940/m

Izgradnja objekta je koštala oko 10% više od konvenkcionalne konstrukcije. Povraćaj uložene sume predviđa se za period od 13 godina po njegovom kompletiranju. Nešto je drugačije kada je reč o individualnim sistemima u okviru konstrukcije. Za PV solarni sistem procenjeno je 23 godina, ali su njegove performance manje od očekivanih i procena je blizu 30godina. Sistem krovnih prozora u magacinu je prijatno iznenađenje. Originalna očekivanja o povraćaju unvesticija od uštede energije su sa 5-6 god. spali na 2-3 godine. Kompaktni sistem fluoroscentnih svetiljki sa 7-8 god procenjen je na 4-5godina, a podno grejanje sa 10-12 godina na manje od 9 godina.

Direkcija za izgradnju je kompjuterskim sistemom doprinela osposobljavanju BH centra da analizira, prati i odgovori na razna pitanja u povezana sa mehanikom i elektrikom ovog objekta.

Dodatna isplativost celokupnog projekta zasniva se na reputaciji. Primetan je porast kupovine proizvoda čak i pre završetka izgradnje, što je pripisano inovativnom projektu i želji javnosti da podrži ovakve inicijative.

Iskorišćenost zemljišta i društvena zajednica
Predviđen projekat se dobro uklopio u generalni urbanistički plan grada Silverthorn-a u zoni za razvoj komercijalnih objekata. U okruženju je bilo stambenih , industrijskih, prodajnih objekata. Jedan deo objekta ranije je izgrađen. Gradilište se nalazilo na 2 km od gradske skupštine i samog centra sa postojećim autobuskim linijama. Biciklistička staza je omogućavala pešački i pristup biciklama. Da bi se BgHorn uklopio u arhitektonsku šemu i prirodno okruženje regiona kao materijal dosta je korišćeno drvo.

Zelena strategija

- Odgovorno planiranje omogućava inflirtriranje u postojeći regionalni i lokalni okvir;
- Odabir u pogledu dostupnog vida transporta;
- Gradilište sa prekomernim prirodnim uticajima Izbeći građenje direktno na močvarnom tlu.

Mogućnosti za uklapanje novog objekta, obezbeđenje sigurnog pristupa pešacima i biciklistima, pristup javnom saobraćaju.

Gradilište/voda

Modifikacije zemljišta u okviru prostora gradilišta bile su neminovne. Manji potok prolazio je kroz sam središnji deo predviđenog gradilišta pa je uz pomoć nadležne građevinske službe smer toka preusmeren na periferiju poseda. Kao rezultat na oko 40% je uvećan procenat vlažnog zemljišta.

Energija

Primarni vid energije bila je električna energija. Vlasnici su hteli da ugradnjom solarnih ćelija na južnoj strani krova proizvedu 5-10% energije za potrebe objekta. Mali generator koji radi pod dejstvom vetra je ugrađen u pod konsrukciju da obezbedi hlađenje sobe sa kompjuterima. Niz krovnih prozora pri vrhu skladišta su primenjeni kao rešenje za obezbeđenje 95% potrebnog osvetljenja. Ovakvi izuzetno izolovani krovni prozori bili su skupi ali prema proceni za 2-3 godine bi se povratilo uloženo.Veliki prozori su ugrađeni i u prodajni prostor, a postavljeni su duž celog objekta. Broj svetiljki je redukovan na 1/3 . BH je prbi prodajni centar u SAD u kome je instalirano skupo fluorescentno osvetljenje. Svaka od 4 grupe sa po dve svetiljke, može da se uključi/isključi po potrebi, u zavisnosti od stepena dnevne svetlosti. Foto električni senzori obezbeđuju aktiviranje svetla po potrebi.

Centar se prirodno ventilira u potpunosti sa svežim vazduhom. Podkrovni prozori , uz kompjuterski kontrolisan nivo karbon-dioksida se otvaraju da bi ustajali vazduh izašao.Ventilacija se odvija kad su donji prozori, vrata i podkrovni prozori otvoreni. Sistem ventilacionih cevi pospešuje rasprostiranje svežeg vazduha.

Skladište se greje putem solarnog kolektora na južnom zidu. Topao vazduh zarobljen u solarnim ćelijama se preko cevi pumpa u skladište. Dodatno grejanje je grejanje na gas.

Podno grejanje u prodajnom objektu obezbeđuje komfor bez preteranog zagrevanja vazduha.Ispod poda je postavljena ekstra izolacija, kao i u krovu i zidovima, pa je gubitak toplote sveden na minimum.

Materjali i resursi

Ograničene količine sirovog drveta au upotrebljene za konstrukciju. Fiber cement kao obloga fasade je izabran za eksterijer zbog svoje dugotrajnosti, izdržljivosti i otpornosti na vatru. Korišćene su i VOC boje u enterijeru.

Građenje i građevinski otpad

- Karton, drvo i čelični otpad je odvožen sa gradilišta tokom procesa građenja;
- Otpad od drveta je odvajan, a zaposleni su ga koristili za građenje;
- Ostaci su korišćeni za peći na drva;
- Karton i čelik su odlagani na posebne gomile kako bi se reciklaža olakšala;
- U proseku 15% otpada (po težini) je odnešeno sa gradilišta.

Eko-materijali

Generator na pogon vetra, ploče od mineralnih vlakana i slame za oblogu kabineta plafona i znakova, boje i premazi sa niskim ili bez VOC aditiva, solarni kolektor-zid, krovni prozori, podno grejanje, kompjuterski navođeni prozori, sistemski kompjuter za upravljanje delovima zgrade, visoko izolovano prozorsko staklo, dodatna krovna i zidna izolacija, plafonski kanali za cirkulaciju vazduha, povećan broj grejnih zona sa 5 na 10 da bi se podmirila buduća fleksibilnost objekta, više manjih kotlova, senzori pokreta za kontrolu svetla u prostorijama za odmor

Eko strategija

- Prostor za reciklažu;
- Ispitivanje lokalne infra strukture za potrebe reciklaže;
- Postavljanje kontejnera za odvajanje reciklirajućeg materijala;
- Posredno recikliranje;
- Određivanje dostupnih spremišta takvog materjala.

Okruženje

Sve zone BH-a imaju dobru ventilaciju. Prednja, zadnja i garažna vrata, u prodajnom delu, u kombinaciji sa prozorima uzrokuju prirodnu ventilaciju prostora. U letnjim mesecima zagrevanje objekta je svedeno na minimum, zbog prepusta, koji unutrašnjost objekta, štite od direktnog osunčanja. štetno zračenje je sprečeno upotrebom VOC boja i dodataka. Sunčevo zračenje se ublažava i prozorskim zastorima.

Eliminacijom upotrebe mašina za hlađenje i provetravanje, znatno se smanjuje buka u objektu. Zbog manje bukesu umesto dva veća instalirana četri manja kotla. Podno grejanje je tiše od vazdušnog grejanja. Kancelarije su zatvorenog tipa pa zato dizvoljavaju privatnost radnog mesta. Raspored prostorija dozvoljava nesmetanu komunikaciju, koja je bitna za produktivnost rada i sigurnost u objektu.

Zbog izuzetne zaštićenosti objekta u pogledu instalacija koje su smeštene ispod poda objekta, kupci i zaposleni su izloženi vrlo niskom elektro­magnetnom zračenju.

Zelena strategija

Termalni komfort, koristiti staklo sa malim koeficijentom topl. provodljivosti, vizuelni komfort i fasada zgrade, veliki prozorski otvori i visoki plafoni da bi se
uvećalo osvetljenje, vizuelni komfort i dizajn enterijera,
svetle i srednje nijanse boja i obloga da bi se maksimalno uvećala refleksija svetlosti, vizuelni komfort i izvori osvetljenja, obezbediti senzore za svetlo, sistemi za ventilaciju i filtriranje vazduha, omogućiti pristup prozorima, smanjiti nivo podzemnih voda i skrenuti kišnicu, iskoristiti teren i stepenasto oblikovanje tla kako bi se skrenula voda od objekta, redukcija štetnih materija u enterijeru, korišćenje boja i podnih adheziva sa malo ili bez VOC-a.

BigHorn centar obuhvata tri faze, pri čemu svaka pojedinačno naglašava poseban aspekt konzervisanja energije. Za razliku od većine uobičajenih prodajno­magacinskih prostora, koji su pretežno velike blokovske zgrade otvorene na tri ili sve četiri strane, može se rećid a je veoma bitna komponenta ovog projekta demonstracija delotvornosti primene dnevnog osvetljenja pomoću KALWALL-ovih translucentnih panela.

Faza I spojila je BHC sa postojećom Sears prodavnicom. Postavljeni su podkrovni prozori kako bi se iskoristile prednosti prirodnog osvetljenja prodajnog prostora. Veliki broj dokaza indicira da inkorporiranje svetlosti kroz zamagljena stakla, čime je sprečena pojava odsjaja, u konstrukciju prodajnog prostora može produktivno delovati na stav kupaca i zapravo stimulisati prodaju.

Studija Heschong Mahone Group-e je po statističkim podacima jednaku vezu između prirodnog osvetljenja i prodajne zone, sa zaključkom da prodavnice takvih osobina enterijera imaju značajno uvećan indeks prodaje nego iste ali bez dnevnog osvetljenja unutrašnjosti. Istovremeno dnevna svetlost mora biti dez neprijatnog odsjaja - direktnog upada sunčevih zraka što bi imalo negativan uticaj na kupce i prodavce. Stoga je Kalwall ponudio balansirano i u potrošnji energije najisplativije rešenje za osvetljenje.

U fazi II (prodavnica podnih obloga i dr. matrijala) je proučen potencijal električne energije korišćenjem solarnih ćelija(PV), ali je došlo do još veće primene Kalwallovih panela.

Fazu III predstavlja sam BigHorn centar. Sprovedena je inicijativa da se jedanput nedeljno okupljaju arhitekte, inženjeri, konsultanti NREL (National Renewable Energy Laboratory). Početna projektna ideja trebala je da se pretoči u stvarnost i omogući stvaranje superiornijeg od bilo kojeg sličnog objekta u državi, pa i u svetu.

RAZLIKA JE U PRIRODNOM OSVETLJENJU

BHC je uveo grejanje putem postojećeg voda prirodnog gasa, sistema podnog grejanja i solarnog kolektora; kontrolisano prirodno hlađenje; neobično visok stepen izolacije i dobijenog solarnog elektriciteta, najveći uspeh pokazao je Kalwall. Dok se većina sličnih objekata do 80% osvetljava kombinacijom krovnih i podkrovnih prozora, dotle u BHC-u te strukture čine oko 97% od ukupnog procesa osvetljavanja a kroz upotrebu Kalwall-ovih prozirnih krovnih prozora. Ovi difuzni, prozirni paneli, eliminišu odsjaj, oštre senke i naprezanje očiju pri odavanju toplote kontrolisanog intenzitetai superiornijih energetskih performansi

ISPLATIVOST KALWALL-a

Dostignutim odgovarajućim stepenom svetlosti dobijenom prolaskom kroz panele, omogućeno je da se upotreba električnog osvetljenja smanji ili potpuno zanemari.Pored očigledne uštede, toplota koju odaju električne svetiljke je minimalizovana što omogućava da se dobije oko 75% uštede u procesu grejanja na gas. Kompletna izgradnja BH centra bila je za 10% skuplja u poređenju sa uobičajenim načinom gradnje, ali su istraživanja pokazala da se na taj način ostvarila za 41% manja količina potrebne el.energije kao i 58% uštede u pogledu troškova iste. Samo u delu skladišta Kalwall krovni prozori će povratiti uloženo za period od 2-3 godine, za razliku od 30 godina za solarne ćelije na krovu. U poređenju sa drugim sistemima (za grejanje, rashlađivanje) Kalwall paneli pokazuju određene konstruktivne prednosti: nema pojave pukotina, samočisteći su i otporni na atmosferske uticaje.
Solarwall solarni kolektor predstavlja integralni deo projektantskog procesa, koji podrazumeva i sistem foto ćelija, krovnih prozora, zastora i podnog grejanja. Solarni kolektor odaje toplotu skladištu grejanjem ventilacionog vazduha koji prolazi kroz metalni,prforirani zidni panel na južnoj strani objekta. Oko 10 000 cm3 ovako zagrejanog vazduha se preko sistema cevi i ventilacionih kanala distribuira u zgradu.

Naučene lekcije i korisne preporuke

Originalni cilj bio je 62% uštede energije koji još nije postignut. Razlozi koji su tome doprineli su: sistem prskalica koji zahteva grejanje na gas, manjak kapaciteta u PV sistemu, kordinacija između grejanja i osvetljenja, odgovornost osoblja u upravljanju kompjuterima i elektronskim sistemima, jer su zahtevi za el. energijom manji tokom noći.

Sistem prskalica u skladištu je instaliran kao vodeni sistem, i ako je bio planiran suvi sistem. Nesporazum je nastao zbog neadekvatnog stručnjaka. Greška je naknadno ispravljena.

Performanse PV sistema su daleko manje od očekivanih zbog primene adaptera koji nije po specifikaciji. Tim dizajnera je morao da ugradi back-up sistem baterija. Instaliranjem tih komponenti u strukturu krova postugnuto je topljenje snega.