A house
- idejni projekat individualne kuće Po+P+1 -
Lokacija za projektovani objekat nalazi se u širem centru Kraljeva, na padini južne orijentacije, na uglu dve ulice.
Kuća je projektovana za četvoročlanu porodicu, roditelje i dvoje dece.
Ideja je bila da se objekat maksimalno izoluje od ulica na koje izlazi i da se orijentiše ka dvorištu, jugu, sa odličnim pogledom na grad.
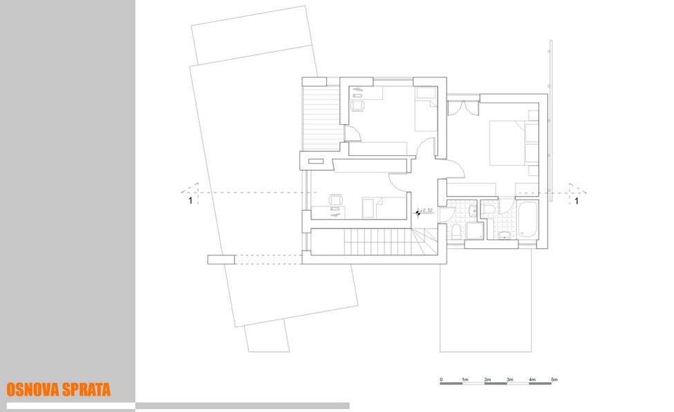
Jasno su odvojene dnevna i noćna funkcija objekta:
-u prizemlju objekta se nalazi boravak, koji je u nivou ulice Momčila Petrovića iz koje se pristupa objektu, pomoćne prostorije, kuhinja i trpezarija koje su blago denivelisane u odnosu na boravak;
-na spratu se nalaze dve dečije sobe, kupatilo za decu i spavaća soba sa sopstvenim kupatilom.
Jednostavnim, kubičnim masama i različitom obradom odvojeni su funkcionalno različiti delovi objekta, međusobno povezani preklapanjima i prodorima u horizontalnom i vertikalnom planu, organizovani oko centralno postavljenog kamina kao jezgra porodične kuće.
Zoran Dukić, dia
