U pitanju je studenski rad sa treće godine Visoke građevinsko – geodetske škole, smer Arhitektura, u Beogradu, iz predmeta Sintezni projekat. Zadatak nam je bio da na prostoru Kosančićevog venca, lokacija između ul. Velike stepenice, Male stepenice, Karađorđeve i Kosančićevog venca, uradimo preparcealizaciju i da isprojektujemo stambeni objekata Po+P+3.
Ovaj objekat se nalazi u produžetku zgrade Fakulteta Primenjenih Umetnosti, prema Narodnoj biblioteci na istoj lokaciji.
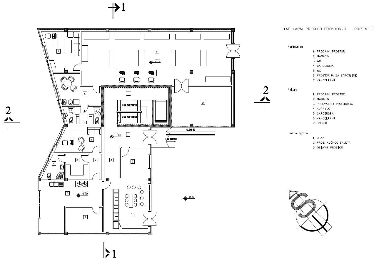
U prizemlju ovoga objekta nalaze se dva lokala, od čega je jedan projektom namenjen da bude pekara, dok je za drugi predviđeno da bude butik odeće, mada mu se namena moze promeniti shodno zahtevima kupca.
Prvi i drugi sprat su potpuno isti, sa po četiri stana kvadrature od 45 – 65 m2 sa terasama, koja imaju sve neophodne prostorije za dvočlanu i tročlanu porodicu.
Treći sprat ima samo dva stana čije su kvadrature 102 m2 i 150 m2, pri čemu su uzete u obzir i površine terasa.
Za svaki stan je predviđen po jedan boks u podrumu za odlaganje stvari, kao i parking mesto. Za dva stana na trećem spratu, predviđena su po dva praking mesta. Parkiranje voziva je po tzb. kasetama čime je znatno ušteđen prostor, ali zbog korišćenja takvog sistema spratnost podruma je veća.
Projekat je rađen u AutoCAD-u 2008 i ArchiCAD-u 11.
